アース・クライシス株式会社 > 柏市あかね町 全2区画
周囲の環境もきっと満足して頂ける住宅用地です。ぜひご覧ください。建築条件がないため、お目当ての建築会社やハウスメーカーで、思いのままのマイホームを建てることが可能です。2,300万円のこちらの土地は、経済的かつ好条件です。常磐線柏周辺で土地をお探しなら、アース・クライシスにお任せください。土地に関するお問い合わせは、0120-887-550にて承っております。
現地案内会
【外観】建築条件がなく、お好きなハウスメーカーでの建築はもちろん、当社でも注文建築を承ることができるので、土地の購入から注文建築までの流れも一括でできます♪
【外観】現況更地にてお引渡しとなるので、解体費用等の初期費用も軽減できるのも嬉しいポイントです♪注文建築用地に最適な立地です!
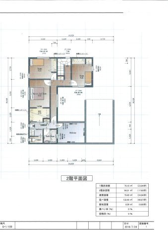
※写真や図と実際の現状とが異なる場合は現状を優先させていただきます。











(※元利均等方式 金利5.00%まで ※返済年数5~50年まで入力できます)
(※ボーナスは年2回で計算しています。1000万円まで入力できます)
(※物件購入時、その他諸費用が発生する場合がございます)
| 所在地 | 千葉県柏市あかね町6-18 | ||
|---|---|---|---|
| 交通 | |||
| 価格 | 2,300万円 | ||
| 土地の敷金/保証金 | -/- | 借地料/借地期間 | -/- |
| 土地面積(坪数) | 99.47㎡(30.08坪) | 坪単価 | 76.46万円 |
| 私道負担面積/セットバック | -/無 | 高圧線下面積 | - |
| 傾斜地部分面積 | - | 路地状敷地 | - |
| 土地権利 | 所有権 | 接道状況 | 二方(東 公道 5.0m 間口 9.1m)(西 4.0m 間口 9.2m) |
| 都市計画 | 市街化区域 | 用途地域 | 第一種低層住居専用 |
| 建築条件 | 無 | 地目/地勢 | 宅地/平坦 |
| 建ぺい率 | 50% | 容積率 | 100% |
| 総区画数 | 1区画 | 販売区画数 | 1区画 |
| 国土法届出要否 | 不要 | その他の法令上の制限 | ■境界確定済 ■西側約4m但書道路(※西側但書道路からの本物件へ出入りはできません。) |
| 取引態様 | 仲介 | 現況 | 更地 |
| 引渡時期 | 相談 | 引渡条件 | 更地渡 |
| 最適用途 | 住宅用地 | ||
| 物件番号 | 98734852 | 取引条件の有効期限 | 2025年11月22日 |
| 設備条件 |
|
||
| 備考 | 建物がごちゃごちゃすることがない第一種低層住居専用地域なので、静かに快適に過ごすことができます。売地をお探しの方に是非見て頂きたいイチオシの土地です。土地のご購入をお考えなら、ぜひこちらの2,300万円の土地を。土地探しなら、常磐線柏周辺からスタートさせましょう。0120-887-550、またはinfo@earth-cr.co.jpからアース・クライシスまでお気軽にお問い合わせください。 | ||
| 設備(その他) | ■公営水道(引き込み無) ■本下水、都市ガス(引き込済) ■東京電力 | ||
| 取扱会社 |
|
||
| QRコード |
このQRコードを読み取ることで、スマホでも物件情報を確認できます。 |
||
※地図上に表示される物件の位置は付近住所に所在することを表すものであり、実際の物件所在地とは異なる場合がございます。
柏市あかね町 全2区画に関するこだわり条件から探す